MÜLLER & TRUNIGER ARCHITEKTEN

Vortrag Minergie-P-Eco am Objekt “Sanitätspolizei Bern“
17. Oktober 2013
Tätigkeitsfeld
Raduis
1994 -
ERSTER BAU
Gemeindehaus Jona/Stadthaus Rapperswil Jona

HOLZBAUTEN
EIZ Frutigen
Hallenbad Frutigen
Giraffenhaus Rapperswil

SANO BERN
Gemeindehaus Jona/Stadthaus Rapperswil Jona
1994 - 98
Gemeindehaus Jona/Stadthaus Rapperswil Jona
1994 - 98
Gemeindehaus Jona/Stadthaus Rapperswil Jona
1994 - 98
Gemeindehaus Jona/Stadthaus Rapperswil Jona
1994 - 98
Haus für Besucher
Gemeindehaus Jona/Stadthaus Rapperswil Jona
1994 - 98
öffentlicher Innenraum
Gemeindehaus Jona/Stadthaus Rapperswil Jona
1994 - 98
gute Orientierung und
„Wohlfühldimensionen“
Gemeindehaus Jona/Stadthaus Rapperswil Jona
1994 - 98
“Einbettung “
Gemeindehaus Jona/Stadthaus Rapperswil Jona
1994 - 98
öffentlicher Innenraum
Gemeindehaus Jona/Stadthaus Rapperswil Jona
1994 - 98
Gemeindehaus Jona/Stadthaus Rapperswil Jona
1994 - 98
Anlässe
Gemeindehaus Jona/Stadthaus Rapperswil Jona
1994 - 98
Gemeindehaus Jona/Stadthaus Rapperswil Jona
1994 - 98
Joner Sandstein
Gemeindehaus Jona/Stadthaus Rapperswil Jona
1994 - 98
Gemeindehaus Jona/Stadthaus Rapperswil Jona
1994 - 98
Gemeindehaus Jona/Stadthaus Rapperswil Jona
1994 - 98
Gemeindehaus Jona/Stadthaus Rapperswil Jona
1994 - 98
„Zahn der Zeit“
Gemeindehaus Jona/Stadthaus Rapperswil Jona
1994 - 98
Kulturobjekt Kat. II
2011
Gemeindehaus Jona/Stadthaus Rapperswil Jona
1994 - 98
Aneignung
Gemeindehaus Jona/Stadthaus Rapperswil Jona
1994 - 98
HOLZBAUTEN
EIZ Frutigen
Hallenbad Frutigen
Giraffenhaus Rapperswil
Sano, Bern
EIZ
Frutigen
2003 - 2007
Eisenbahn-Bauten

EIZ
Frutigen
2003 - 2007
Flexibiliät der
Hallenlänge
EIZ
Frutigen
2003 - 2007
EIZ
Frutigen
2003 - 2007
EIZ
Frutigen
2003 - 2007
EIZ
Frutigen
2003 - 2007
EIZ
Frutigen
2003 - 2007
EIZ
Frutigen
2003 - 2007
EIZ
Frutigen
2003 - 2007
EIZ
Frutigen
2003 - 2007
EIZ
Frutigen
2003 - 2007
EIZ
Frutigen
2003 - 2007
Hallenbad
Frutigen
Wbw 2006
Hallenbad
Frutigen
Wbw 2006
Hallenbad
Frutigen
Wbw 2006
Hallenbad
Frutigen
Wbw 2006
Hallenbad
Frutigen
Wbw 2006
Giraffenanlage
Rapperswil
2005 - 2006
Giraffenanlage
Rapperswil
2005 - 2006
Giraffenanlage
Rapperswil
2005 - 2006
Giraffenanlage
Rapperswil
2005 - 2006
Giraffenanlage
Rapperswil
2005 - 2006
Rettungsdienst und kantonale Sanitätsnotrufzentrale Bern
Sano Bern
2008-2013

BAUHERRSCHAFT
Amt für Grundstücke und
Gebäude des Kantons Bern

NUTZER
Sanitätspolizei,
Stadt Bern

BAULEITUNG
Andreas Akeret
Baumanagement, Bern

ARCHITEKT
Müller & Truniger,
Zürich
Sano Bern
2008-2013
Sano Bern
2008-2013
Sano Bern
2008-2013
Sano Bern
2008-2013
Sano Bern
2008-2013
Sano Bern
2008-2013
Organisation
Sano Bern
2008-2013
Organisation
Sano Bern
2008-2013
Sano Bern
2008-2013
Sano Bern
2008-2013
Struktur
Sano Bern
2008-2013
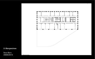
2. Obergeschoss
Sano Bern
2008-2013
1. Obergeschoss
Sano Bern
2008-2013
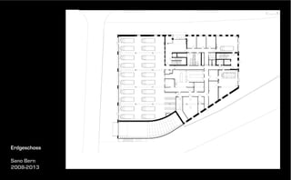
Erdgeschoss
Sano Bern
2008-2013
Untergeschoss
Sano Bern
2008-2013
Balken
Sano Bern
2008-2013
Sano Bern
2008-2013
...herzlichen Dank!
Nachweisinstrument
Nachweisinstrument
Ausführung
 

3.9

Materialwahl  

Ergänzend  zu  der  SIA-­Norm  118,  Art.  136  Abs.  1  wird  folgendes  
bestimmt:  
Es  sind  Materialien  gemäss  den  Anforderungen  MINERGIE-­ECO  
zu  verwenden.  
Sind  die  Produkte  freigestellt,  so  sind  solche  zu  wählen,  welche  
nach  den  neuesten  Stand  der  Erkenntnisse  die  Umwelt  (Boden,  
Luft,  Wasser,  Biosphäre)  am  wenigsten  belasten.  Dabei  ist  der  
gesamte  Lebenszyklus  der  Produkte  vom  Rohstoff  über  Fabrikati-­
on  bis  zur  Entsorgung  zu  betrachten.  
Es  dürfen  nur  Materialen,  Imprägnierungen  und  Oberflächenbe-­
handlungen  verwendet  werden,  welche  die  Gesundheit  der  
Benutzer  nicht  gefährden.  Lösemittelhaltige  Produkte  (Anstriche,  
Klebstoffe,  Fugenmaterialien,  etc.)  sind  nicht  gestattet.  
Die  Materialwahl  des  Unternehmers  ist  voll  zu  deklarieren  (bei  
Produkten  Hersteller-­/Lieferfirma  und  exakte    
Produktebezeichnung;;  bei  eigenen  Arbeiten  sämtliche  Applikati-­
onen).  Bei  vom  Unternehmer  vorgeschlagenen  Halbfabrikaten  ist  
er  auf  Anfrage  der  Bauherrschaft  für  die  Beschaffung  einer  
solchen  Deklaration  besorgt.  
Der  Einsatz  von  Montage-­  und  Füllschaum  ist  nicht  gestattet.  

  

Ausschreibung
Datenblätter
Produktedeklaration
Ausführung
geprüfte Produkte
MÜLLER & TRUNIGER ARCHITEKTEN

Besten Dank!
www.muellertruniger.ch

Minergie-P-Eco am Objekt «Sanitätspolizei Bern»