1981 wurde erstmals eine kleine 2 Zylinder Oszillierende nach
veröffentlichten Plänen gebaut. Die Maschine hätte ein Länge von 58 mm,
einen Bohrung von 6 mm und eine Schwungscheibe von 32 mm. Nun
Ralph Weidman in Wooster, Ohio, liebte es nicht in so kleinen
Dimensionen zu arbeiten und verdoppelte kurzer Hand die Masse des
Plans und fügte 2 Zylinder und ein Umsteuerventil hinzu. Seine Pläne
waren die Grundlage für die Überarbeitung der hier gezeigten Pläne.

     Die Anfertigung der Seitenrahmen
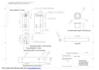
     Die Rahmen haben einen 1.6mm Passstift, damit wird der Endblock
     gegen verdrehen fixiert. (Siehe Plan). Nach dem ausschneiden der
     Rahmen werden diese zusammengespannt und die 3mm Bohrungen
     gebohrt. Dann werden beide Rahmen zusammengeschraubt und mit
     einem 7,7 mm Bohrer das Kurbelwellenlager gebohrt und auf 8mm
     aufgerieben. Das Gleiche wird mit den 4 mm Drehzapfenlagern der
     Zylinder gemacht.

     Die Endblöcke.
     Nach dem die 2 Endblöcke hergestellt sind, werden diese passend
     mit den Seitenrahmen zusammen gespannt und mit einen 3mm
     Bohrer die Bohrungen für die 3mm Gewindebohrungen markiert.
     Nach lösen der Klammern werden die 3mm Gewinde Sackbohrungen
     angefertigt.
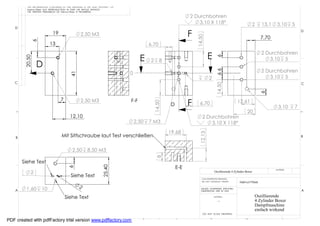
Die Bohrlehre für die Dampfkanäle,
                           ist ein einfacher Stahlstreifen mit
                           geriebenen Bohrungen für das 8mm
                           Kurbelwellenlager, das 4mm
                           Zylinderdrehzapfenlager und der
                           1,6mm Bohrung für die Dampfpassagen.
                           Markiere eine Seite.

Das Bohren für die Passstifte
Baue die Seitenrahmen und die Endblöcke zusammen und richte sie
exakt aus. Nimm einen 1,6mm Bohrer und bohre durch die Rahmen
in die Endblöcke. Entferne die Rahmen und klebe mit Loctite die
Passstifte in die Endblöcke. Warte ca. 20 min bis der Kleber fest ist,
entferne sorgfältig den Kleber von den Außenseiten der Endblöcke
und schraube die Rahmen wieder an. Alle vier Ecken werden von 1
bis 4 markiert und die Ober und die Unterseite auf den Endblöcken
gekennzeichnet. So sind das Zerlegen und der Zusammenbau
einfach und rasch möglich.

Das Bohren der Dampfkanäle
Stecke ein 8mm Rundmaterial durch die Kurbelwellenbohrungen
und ein 4mm Rundmaterial durch die Zylinder Drehlager.

Die Bohrlehre wird auf die 4mm Achse gesteckt und das untere Ende
gegen die Kurbelwellenachse gedrückt, wie im Foto gezeigt. Bohre
dann den Dampfkanal mit einem Bohrer ungefähr 8mm tief durch
die 1,6mm Bohrung der Bohrlehre.

Entferne die Bohrlehre und drehe sie um auf die gegenüberliegende
Seite und wiederhole das Ganze für den 2. Dampfkanal.

Bohre alle 8 Dampfkanäle auf gleiche Weise. Entferne die Rahmen
und bohre die Kanäle mit einem 2,5 mm Bohrer von der jeder Seite
bis zur Mitte. Achtung bohre nicht den Dampfkanal nur von einer
Seite durch.

Bohre dann so tief bis eine Durchgangsbohrung für die Dampfkanäle
entsteht.

Jetzt werden die restlichen Bohrungen der zwei Endblöcke
angefertigt.

Auf einen der Blöcke wird das Dampfsteuerventil angebracht.
Von der inneren Seite wie im Schnitt B-B gezeigt wird eine Bohrung
zum untern Dampfkanal gebohrt. Die Ventilbohrungen werden im
Abstand von 6mm wie im Plan gezeigt hergestellt. Zwei Bohrungen
gehen durch den Block und haben Anschlüsse für den Dampfein-
und Austritt.
Die dritte Bohrung führt zum oberen Dampfkanal, die vierte zum
unteren Dampfkanal. In der Mitte ist die Bohrung für die Achse des
Dampfventils.
Die Oberfläche des Blocks muss eben und spiegelglatt geschliffen
sein, um gut abzudichten. Dies muss auch an den allen
Zylinderflächen der Fall sein. Das polieren der Flächen geschieht
mit einen feinen Schmirgelleinen in Stufen. Beginnend mit einer
Körnung von 120 hinauf, Stufe für Stufe, bis zur Körnung 800. (120,
180,240,320,400, …) Es wir immer solange geschliffen bis keine
Spur mehr von der letzten Körung zu sehen ist.
Die Bohrungen auf der Innenseite der Endblöcke werden mit
                           Stiftschrauben und Loctite dampfdicht
                           verschlossen. (Siehe Bild)
                           Baue die Rahmen und Endblöcke
                           zusammen. Verbinde mit
                           Kupferrohren(kann auch Messing sein) die
                           unteren Dampfkanäle der einen Seite mit
                           den oberen Dampfkanälen der anderen
                           Seite.
                           Ein Rohr verbindet die Einströmkanäle,
das andere Rohr verbindet die Ausströmkanäle. Mit dem
Dampfsteuerventil werden die Strömungsrichtungen gewechselt,
und damit die Drehrichtung der Maschine bestimmt.


Die Lager der Kurbelwelle werden vorsichtig mit Loctite in die
Rahmen geklebt. Dabei ist es wichtig die Kurbelwelle einzufetten,
einzubauen und bis zum Aushärten des Klebers in den Lagern zu
belassen. Danach werden die Ölbohrungen in die Rahmen
eingebracht. Reinigen sie alles gründlich und schließen Sie die

Die Zylinder werden nach den Plänen gefertigt, Dabei ist zu
                         beachten dass diese 0,3mm kleiner
                         gebohrt und dann mir einer Reibahle auf
                         Endmaß gerieben werden. Der Drehzapfen
                         muss exakt im rechten Winkel moniert
                         werden. Dafür ist es von Vorteil wenn das
                         Gewindeloch auf der Bohrmaschine per
                         Hand hergestellt, (exakt rechter Winkel)
                         und das Gewinde des Zapfens auf der
                         Drehbank geschnitten wird.
                         Der Zapfen wird dann mit Loctite
                         eingeklebt.


Die Herstellung der Kolben beginnt mit den Kolbenstangen laut Plan.
Die Pleuellager werden fertig gestellt und hart mit den Stangen
verlötet. Danach werden die Kolben mit einen Übermaß von 0,5mm
vorgefertigt und mit den Kolbenstangen verbunden. Auch hier wird
mit Loctite geklebt. Danach werden die Kolbenstangen in Die
Drehbank eingespannt und auf das vorläufige Endmaß abgedreht.
Der Kolben muss streng in die Zylinderbohrung passen. Durch
vorsichtiges schleifen mit einer Läpppaste wird der Kolben in den
Zylinder eingepasst.

Jeder Kolben und Zylinder wird mit der Nummer der Ecke an der er
montiert wird gezeichnet.
Die Kurbelscheiben werden laut Plan hergestellt und die
Kurbelzapfen eingepresst und eingeklebt. Um 90° versetzt werden
die Kurbelscheiben auf der Kurbelwelle montiert. Dies macht die
Maschine selbstanlaufend.

Das Schwungrad kann nach eigenen Ideen gefertigt werden und
wird zwischen den Rahmen montiert. Dabei kann sowohl ein Seilrad
wie auch ein Zahnrad zur Kraftübertragung mit montiert werden.

Die Verrohung kann mit Kupferrohren wie auch mit Messingrohren
erfolgen. Beachten sie dabei das vor dem biegen die Rohre
ausgeglüht werden. Messingrohr sollte nur in glühenden Zustand
gebogen werden.

Die Maschine ist sehr drehfreudig und läuft bereist mit 0.3 bar an
wenn sie exakt gebaut ist.

                           Das Dampfventil wird aus Messing oder
                           Bronze Rundmaterial hergestellt.
                           Nachdem es fertig gedreht ist und die
                           Mitte mit einen Zentrumsbohrer
                           vorgebohrt ist, wird eine Seite mit
                           wasserfesten Filzstift bemalt. Das Layout
                           der Umsteuerkanäle wird darauf markiert
und die Endpunkte mit einem passenden Bohrer gebohrt. Die Kanäle
auf der Fräsmaschine hergestellt, und der Rest fertig gedreht. Der
Hebel für das Ventil wird gebogen und hart eingelötet. Das Ventil
                           wird an der Unterseite dampfdicht
                           geschliffen.

                          Die Kurbelscheiben werden laut Plan
                          hergestellt und die Kurbelzapfen
                          eingepresst und eingeklebt. Um 90°
                          versetzt werden die Kurbelscheiben auf
                          der Kurbelwelle montiert. Dies macht die
                          Maschine selbstanlaufend.
Das Schwungrad kann nach eigenen Ideen gefertigt werden und
wird zwischen den Rahmen montiert. Dabei kann sowohl ein Seilrad
wie auch ein Zahnrad zur Kraftübertragung mit montiert werden.




Die Verrohung kann mit Kupferrohren wie auch mit Messingrohren
erfolgen. Beachten sie dabei das vor dem biegen die Rohre
ausgeglüht werden. Messingrohr sollte nur in glühenden Zustand
gebogen werden.
Die Maschine ist sehr drehfreudig und läuft bereist mit 0.3 bar an
wenn sie exakt gebaut ist.
Von diesem Grunddesign lassen sich viele Varianten der Maschine
bauen. Zum Beispiel eine 4 Zylinder zweifach wirkende Maschine
oder eine V-Maschine.
Viel Spaß beim bauen.
THE INFORMATION CONTAINED IN THIS DRAWING IS THE SOLE PROPERTY OF
          Helmut Pirker ANY REPRODUCTION IN PART OR WHOLE WITHOUT
          THE WRITTEN PERMISSION OF Helmut Pirker IS PROHIBITED.




   D                                                                                                                       2
                                                                                                                                                                    D



                                              2

                              5


                                                                                                                                                     1
   C                                                                                                                                                                C




                                                                                                                                   2                                B
    B


                                                   2
                                                                              4

                                                                                                                                                         MATERIAL
                                                                                                             Oszillierende 4 Zylinder Boxer
           5           Baugruppe Dampfsteuerung                                        1
           4           Grundplatte                                                     1          CAD GENERATED DRAWING,
                                                                                                  DO NOT MANUALLY UPDATE         Helmut Pirker
           3           Kolben                                                          4
    A      2           Zylinder                                                        4          UNLESS OTHERWISE SPECIFIED
                                                                                                  DIMENSIONS ARE IN MM                                              A
           1           Zylinderträger                                                  1                     MATERIAL                         Oszillierende
                                                                                                                --                            4 Zylinder Boxer
                                                                                      Menge




                                                                                                                                              Dampfmaschine
        POS.-NR.                            BENENNUNG                                                                                         einfach wirkend
                                                                                                   DO NOT SCALE DRAWING

             8                7                6
PDF created with pdfFactory trial version www.pdffactory.com                      5           4          3                             2                      1
THE INFORMATION CONTAINED IN THIS DRAWING IS THE SOLE PROPERTY OF
         Helmut Pirker ANY REPRODUCTION IN PART OR WHOLE WITHOUT
         THE WRITTEN PERMISSION OF Helmut Pirker IS PROHIBITED.




   D
                                                                                                                                                              D




                                                                                               164,92




   C                                                                                                                                                          C




                                                                             93,29


    B                                                                                                                                                         B
                             66,01




                                                                                                                                                   MATERIAL
                                                                                                        Oszillierende 4 Zylinder Boxer

                                                                                             CAD GENERATED DRAWING,
                                                                                             DO NOT MANUALLY UPDATE         Helmut Pirker

                                                                                             UNLESS OTHERWISE SPECIFIED
    A                                                                                        DIMENSIONS ARE IN MM                                             A
                                                                                                        MATERIAL                         Oszillierende
                                                                                                           --                            4 Zylinder Boxer
                                                                                                                                         Dampfmaschine
                                                                                                                                         einfach wirkend
                                                                                              DO NOT SCALE DRAWING

             8                7                6
PDF created with pdfFactory trial version www.pdffactory.com                         5   4          3                            2                      1
THE INFORMATION CONTAINED IN THIS DRAWING IS THE SOLE PROPERTY OF
          Helmut Pirker ANY REPRODUCTION IN PART OR WHOLE WITHOUT
          THE WRITTEN PERMISSION OF Helmut Pirker IS PROHIBITED.




   D
                                                                                                                                                                   D
                                                                                          5
                                                                                                                                              2


                                                                                                                                                   6
                                                                         1


   C
                                                        4                                                                                      6
                                                                                                                                                                   C




                                                     6

                                                    3                                                                          1



    B                                                                                                                                                              B




            6           Verrohrung                                                 1                                                                    MATERIAL
                                                                                                             Oszillierende 4 Zylinder Boxer
            5           Kubelwelle                                                 1
            4           ISO 7046-1 - M3 x 10 - Z ---                               4
                                                                                                  CAD GENERATED DRAWING,

                        10S                                                                       DO NOT MANUALLY UPDATE           Helmut Pirker

    A
            3           Endblock                                                   1              UNLESS OTHERWISE SPECIFIED
                                                                                                                                                                   A
            2           Endblock Dampfsteuerung                                    1
                                                                                                  DIMENSIONS ARE IN MM

                                                                                                             MATERIAL                         Oszillierende
            1           Seitenrahmen                                               2                            --                            4 Zylinder Boxer
                                                                                                                                              Dampfmaschine
                                                                                  MENGE




                                                                                                                                              einfach wirkend
        POS.-NR.                     BENENNUNG
                                                                                                   DO NOT SCALE DRAWING

             8                7                6
PDF created with pdfFactory trial version www.pdffactory.com                  5               4          3                             2                     1
THE INFORMATION CONTAINED IN THIS DRAWING IS THE SOLE PROPERTY OF
         Helmut Pirker ANY REPRODUCTION IN PART OR WHOLE WITHOUT
         THE WRITTEN PERMISSION OF Helmut Pirker IS PROHIBITED.

                                                                                                                                                    3.10 Durchbohren
                                          3.10 Durchbohren                                                                                                6,30 X 90°
   D                                            6,30 X 90°
                                                                                     165                                                                                                 D

                                                                         50,80




                                                                                                                                                            9,50
                                                                                             Bohren mit Bohrlehre
                                                                                                  laut Text
           19




                                                                                                                      1,60




                                                                                                                                                    25,50


                                                                                                                                                                   44,50
                6,90




   C                                                                                                                                                                                     C




                                                                                                                  4
                                                        1 ,6


                                                                    4
                                                          0




                                                                                                     11,02
                              6                                                                                                     15
                               17,70                                                        19
                                                                                      38

    B
                                                                                                 R3,15       11         B                                                                B




                                                                                                                                                    6
                                               6                                     3,40
                                                                        1




                                                                                                                                                                              MATERIAL
                                                                                                                                    Seitenrahmen

                                                                                                                        CAD GENERATED DRAWING,
                                                                                                                        DO NOT MANUALLY UPDATE        Helmut Pirker

                                                                                                                       UNLESS OTHERWISE SPECIFIED
    A                                                                                                                  DIMENSIONS ARE IN MM                                              A
                                                                                 2                                                 MATERIAL                         Oszillierende
                                                                                                                              Messing 58
                                                                                                                                                                    4 Zylinder Boxer
                                                                                                                                                                    Dampfmaschine
                                                                                                                                                                    einfach wirkend
                                      B (5 : 1)                                                                         DO NOT SCALE DRAWING

             8                7                6
PDF created with pdfFactory trial version www.pdffactory.com                          5              4                         3                             2                     1
THE INFORMATION CONTAINED IN THIS DRAWING IS THE SOLE PROPERTY OF
          Helmut Pirker ANY REPRODUCTION IN PART OR WHOLE WITHOUT
          THE WRITTEN PERMISSION OF Helmut Pirker IS PROHIBITED.

                                                                                                                2 Durchbohren
                                                                                                                    3,10 X 118°                                2      13,1    3,10      5
   D

                                                                                                                F
                                                                                                                                                                                            D
                             19                   2,50 M3




                                                                                                                    14,50
                                                                                                                                                                      7,70
                 6
                          13                                                             6,70
                                                                                                                                                                      2 Durchbohren
                                                                                    E                                         E




                                                                                                                                    6
         20,50




                                                                                         2       8                                                                       3,10 5
                 D
                                                                                                                                                                      2 Durchbohren




                                                                                                                                    66
                                          41                                  0
                                                                                                                              2                                          3,10 5
   C                                                                                                                                                                                        C




                                                                                                                                    14,50




                                                                                                                                                                      6
                                   7              2,50 M3                     F-F
                                                                                                                F                                   12,61




                                                                                             14,50
                                                                                                      D               6,70
                                                                                                                                                                               3,10     7
                                                                                                                                                            20
                                          12,10                                                                         2 Durchbohren
                                                                                  2,50   7 M3                               3,10 X 118°
                                                                                                     19,68




                                                                                                                      12,13
    B                              Mit Sitfschraube laut Test verschließen                                                                                                                  B



                                           2,50        8.50 M3
                                                                                              8
        Siehe Text
                                                                                                          E-E
                                                                  25,40
                                        6




                                                                                                                                                                             MATERIAL
             2                                                                                                                    Oszillierende 4 Zylinder Boxer
                                          Siehe Text                                                                   CAD GENERATED DRAWING,
                                                                                                                       DO NOT MANUALLY UPDATE         Helmut Pirker

                     10                         2
    A     1,60                                                                                                         UNLESS OTHERWISE SPECIFIED
                                                                                                                       DIMENSIONS ARE IN MM                                                 A

                                       Siehe Text                                                                                 MATERIAL                         Oszillierende
                                                                                                                                     --                            4 Zylinder Boxer
                                                                                                                                                                   Dampfmaschine
                                                                                                                                                                   einfach wirkend
                                                                                                                        DO NOT SCALE DRAWING

             8                7                6
PDF created with pdfFactory trial version www.pdffactory.com                         5                    4                   3                            2                      1
THE INFORMATION CONTAINED IN THIS DRAWING IS THE SOLE PROPERTY OF
         Helmut Pirker ANY REPRODUCTION IN PART OR WHOLE WITHOUT
         THE WRITTEN PERMISSION OF Helmut Pirker IS PROHIBITED.




   D                                                                         2   15   2,50       5.50 M3




                                                                                                                                                                             6
                                                                                                                                                                                            D
           Verschließen lt. Text
                                                       7                         14
                                                                                                  2.50     13       3,10     7




                                                                                      6
                                                            6
                                                                                                   3,10        7
                                                                                                                                                                                     8




                                                                                                                                                 10
                                 41




                                                                                      6




                                                                                                                                                                            7
   C                                                                                                                                                                                        C


                                                19                                        7,70                                            Kurbelwellenlager 2 Stk Bronze
                                                 9,50                        25,40




                                                                                                                   1 ,6
                                                                                                                                                             14,60




                                                                                                                    0
                                  25,40




                                                               6




    B
                                                                        2,50     8.50 M3                                                                                                    B
                                                                                                                                                           Passstift
                                                    Dampfkanäle lt. Text bohren
                                                Verschließen lt. Text
                                              Dampfkanäle lt. Text bohren
                                                                                                                                                                                 MATERIAL
                                                                                             60
                                                                                      4




                                                                                                                                      Oszillierende 4 Zylinder Boxer
                                                 3




                                                                                           1,




                                                                                                                           CAD GENERATED DRAWING,
                                                                                                                           DO NOT MANUALLY UPDATE         Helmut Pirker

                                                                                                                           UNLESS OTHERWISE SPECIFIED
                                                                                                  5,60




    A                                                                                                                      DIMENSIONS ARE IN MM                                             A
                                                                                                                                      MATERIAL                         Oszillierende
                                                                                                                                         --                            4 Zylinder Boxer
                                              50,80                                        14,30                                                                       Dampfmaschine
                                                                                                                                                                       einfach wirkend
                                             Bohrlehre 2mm Baustahl                                                         DO NOT SCALE DRAWING

             8                7                6
PDF created with pdfFactory trial version www.pdffactory.com                           5                   4                      3                            2                      1
THE INFORMATION CONTAINED IN THIS DRAWING IS THE SOLE PROPERTY OF
         Helmut Pirker ANY REPRODUCTION IN PART OR WHOLE WITHOUT
         THE WRITTEN PERMISSION OF Helmut Pirker IS PROHIBITED.




   D
                                                                                                                                                         D




   C                                                                                                                                                     C




    B                                                                                                                                                    B
                                                                             MENGE



           POS.-NR.                        BENENNUNG


                                                                                                                                              MATERIAL
                                                                                                        Kurbelwellen Gruppe

                 1           Kurbelwelle                                      1              CAD GENERATED DRAWING,
                                                                                             DO NOT MANUALLY UPDATE       Helmut Pirker
                 2           Schwungscheibe                                   1
    A            3           Kubelscheibe                                     2              UNLESS OTHERWISE SPECIFIED
                                                                                             DIMENSIONS ARE IN MM                                        A
                              Kurbelscheibe                                   1                         MATERIAL                    Oszillierende
                              Kurbelstift                                     1                            --                       4 Zylinder Boxer
                              ISO 4029 - M3 x 8-S                             1                                                     Dampfmaschine
                                                                                                                                    einfach wirkend
                                                                                              DO NOT SCALE DRAWING

             8                7                6
PDF created with pdfFactory trial version www.pdffactory.com                         5   4          3                         2                    1
THE INFORMATION CONTAINED IN THIS DRAWING IS THE SOLE PROPERTY OF
         Helmut Pirker ANY REPRODUCTION IN PART OR WHOLE WITHOUT
         THE WRITTEN PERMISSION OF Helmut Pirker IS PROHIBITED.


                                                                                                                               I                M3                 3
                                               2,50         13 M3
   D
                                                                                                                                                                                  D




                                                                                     28

                                                                                              15
                 3




   C
                                                                                                                               I                                                  C




                                                                                              50




                                                                                                                                             6
                                                                                                                          I-I
                                                                   26
                                  9,50
                                                                                          Schwungrad Automatenstahl/Grauguß
              Kurbelscheibe Automatenstahl                                   6


           H




                                                                                                   9 0°
                                                                                          0

    B                                                                                                                                                                             B

                                                                                                                                     R3
                        6                                        10
                                                                                                          H (2 : 1)
                                                          60                                  6

                                  Kurbelwelle Silberstahl härten                                                                                                       MATERIAL
                                                                                                                          Oszillierende 4 Zylinder Boxer

                                  16                                                                           CAD GENERATED DRAWING,
                                                                                                               DO NOT MANUALLY UPDATE         Helmut Pirker

                                                                                                              UNLESS OTHERWISE SPECIFIED
    A                                                                                                                                                                             A
                                                           3




                                                                                                              DIMENSIONS ARE IN MM

                                                                                                                          MATERIAL                         Oszillierende
                                                                                                                             --                            4 Zylinder Boxer
           Kurbelstift Silberstahl härten                                                                                                                  Dampfmaschine
                                                                                                                                                           einfach wirkend
                                                                                                               DO NOT SCALE DRAWING

             8                7                6
PDF created with pdfFactory trial version www.pdffactory.com                     5            4                       3                            2                        1
THE INFORMATION CONTAINED IN THIS DRAWING IS THE SOLE PROPERTY OF
         Helmut Pirker ANY REPRODUCTION IN PART OR WHOLE WITHOUT
         THE WRITTEN PERMISSION OF Helmut Pirker IS PROHIBITED.
                                                                                                        41
                                                  14




                      24
                                                                                                                J

                    4,
   D
                                                                                                                                                                     D




                                                                                                                                              20
                 20




                                                                             17




                                                                                         0,40
   C                                                                                                                                                                 C
                                                  20                                            12,30    16
                                                                      1,60        6 M2
                        Bohrungen vom Zylinderdeckel übernehmen

                                                                                                                                                      1,60



    B                                                                                                                                                                B




                                                                                                        J                        4   2.60 M4x05

                                                                                                                                                          MATERIAL
                                                                                                                    Zylinder

                                                                                                        CAD GENERATED DRAWING,
                                                                                                        DO NOT MANUALLY UPDATE        Helmut Pirker

                                                                                                        UNLESS OTHERWISE SPECIFIED
    A                                                                                                   DIMENSIONS ARE IN MM                                         A
                                                                                                                   MATERIAL                     Oszillierende
                                                                                                            Messing / Bronze                    4 Zylinder Boxer
                                                                                                                                                Dampfmaschine
                                                                                                                                                einfach wirkend
                                                                                                         DO NOT SCALE DRAWING

             8                7                6
PDF created with pdfFactory trial version www.pdffactory.com                             5         4           3                          2                    1
THE INFORMATION CONTAINED IN THIS DRAWING IS THE SOLE PROPERTY OF
         Helmut Pirker ANY REPRODUCTION IN PART OR WHOLE WITHOUT




                                                                                                                       0




                                                                                                                                                                                       9
         THE WRITTEN PERMISSION OF Helmut Pirker IS PROHIBITED.




                                                                                                                   R1
                                                                                                                                                                       3
   D
                                                                         M4x0.5
                             5                                 3




                                                                                                                        14




                                                                                                                                                                                        6,20
                                                                                                                                                                                                        D




                                                                                    11.4
                                                                         4
         M4




                                                                                                                                                                   2




                                                                                                                                                                                        3
                                              25
                                                                                                          13,01            0,50                2,50
                 Zylinderdrehachse Silberstahl härten Zylinder deckel Messing                                                                           Feder scheibe Messing/Bronze
                                                                                                                                     1
   C                                                                                                                                                                                                    C
                                              0,40

                                                            0,20
                                                                                                                              8              8                 3    7
                                                                              Feder 6mm Durchmesser
                                                                             Lange 12mm
                                                                             Drahtstärke ca. 0.4 mm




                                                                                                                       3




                                                                                                                                                                   6
                                          K (5 : 1)          4,75            4,30
          2,40       4.85 M3
                                                                                           K                                          16
                                                                                                                                                                                   6
                                                                                                                                                                                        R3

    B                                                                                                                        Kolbenstangenfuß                                                           B
                                                                                                                             Messing / Bronze                                                      R3
              10




                                                                                                                                                                                        7
                                       4,30                                                        4,30
                  14




                                                                                                                                                                                        MATERIAL
                          Kolben Messing                                      10                                                             Oszillierende 4 Zylinder Boxer

                                       4,85                              4                                                        CAD GENERATED DRAWING,
                                                                                                                                  DO NOT MANUALLY UPDATE           Helmut Pirker
                                                                                                     5            M3              UNLESS OTHERWISE SPECIFIED
    A                                                                                                                             DIMENSIONS ARE IN MM                                                  A
                   3




                                                                                                                                             MATERIAL                         Oszillierende
                                                                      49,50                                                                      --                           4 Zylinder Boxer
                                                                                                                                                                              Dampfmaschine
                           Kolbenstange Silberstahl                                                                                                                           einfach wirkend
                                                                                                                                   DO NOT SCALE DRAWING

             8                7                6
PDF created with pdfFactory trial version www.pdffactory.com                                   5                   4                     3                              2                      1
THE INFORMATION CONTAINED IN THIS DRAWING IS THE SOLE PROPERTY OF
                 Helmut Pirker ANY REPRODUCTION IN PART OR WHOLE WITHOUT
                 THE WRITTEN PERMISSION OF Helmut Pirker IS PROHIBITED.



                                                                    2       5
                                                                                       4                                                                                    12
   D
                                               10,99           4,96                         1,50                                                                                  ,2
                                                                                                                                                                                     7   D




                                                                                                                                                8
                          3 2,58
                11,08




                                                                             5,93




                                                                                               8
                                                                                                                                                      10
                                                                             8




                                                                                                                                                                      2
   C                                                                                                                                                                                     C
                          23




                                                                                       6
                                          Dampfventil Messing                        3.40 Senken                                Hebel hart löten
                                                                                        6,30 X 90°
                                   4,50
                                                      58                                   3,40    4.55
                                                                                                   2,
                                                                                                     83
                        9,75
                17,75




                                                        47
    B                                                                                                                                                                                    B
        63,50




                                                                                                   Grundplatte Alu/Messing
                                                                    28
                                           44




                                                                                                                                                                         MATERIAL
                                                                                                                              Oszillierende 4 Zylinder Boxer

                                                                                                                   CAD GENERATED DRAWING,
                                                                                                                   DO NOT MANUALLY UPDATE         Helmut Pirker

                                                                                                                   UNLESS OTHERWISE SPECIFIED
    A                                                                                                              DIMENSIONS ARE IN MM                                                  A
                                                                                                                              MATERIAL                         Oszillierende
                                                                                                                                 --                            4 Zylinder Boxer
                                                          67                                                                                                   Dampfmaschine
                                                                                                     6                                                         einfach wirkend
                                                               3 Durchbohren                                        DO NOT SCALE DRAWING

             8                7                6
PDF created with pdfFactory trial version www.pdffactory.com                               5              4               3                            2                      1

4 zyl boxer_02

  • 1.
    1981 wurde erstmalseine kleine 2 Zylinder Oszillierende nach veröffentlichten Plänen gebaut. Die Maschine hätte ein Länge von 58 mm, einen Bohrung von 6 mm und eine Schwungscheibe von 32 mm. Nun Ralph Weidman in Wooster, Ohio, liebte es nicht in so kleinen Dimensionen zu arbeiten und verdoppelte kurzer Hand die Masse des Plans und fügte 2 Zylinder und ein Umsteuerventil hinzu. Seine Pläne waren die Grundlage für die Überarbeitung der hier gezeigten Pläne. Die Anfertigung der Seitenrahmen Die Rahmen haben einen 1.6mm Passstift, damit wird der Endblock gegen verdrehen fixiert. (Siehe Plan). Nach dem ausschneiden der Rahmen werden diese zusammengespannt und die 3mm Bohrungen gebohrt. Dann werden beide Rahmen zusammengeschraubt und mit einem 7,7 mm Bohrer das Kurbelwellenlager gebohrt und auf 8mm aufgerieben. Das Gleiche wird mit den 4 mm Drehzapfenlagern der Zylinder gemacht. Die Endblöcke. Nach dem die 2 Endblöcke hergestellt sind, werden diese passend mit den Seitenrahmen zusammen gespannt und mit einen 3mm Bohrer die Bohrungen für die 3mm Gewindebohrungen markiert. Nach lösen der Klammern werden die 3mm Gewinde Sackbohrungen angefertigt.
  • 2.
    Die Bohrlehre fürdie Dampfkanäle, ist ein einfacher Stahlstreifen mit geriebenen Bohrungen für das 8mm Kurbelwellenlager, das 4mm Zylinderdrehzapfenlager und der 1,6mm Bohrung für die Dampfpassagen. Markiere eine Seite. Das Bohren für die Passstifte Baue die Seitenrahmen und die Endblöcke zusammen und richte sie exakt aus. Nimm einen 1,6mm Bohrer und bohre durch die Rahmen in die Endblöcke. Entferne die Rahmen und klebe mit Loctite die Passstifte in die Endblöcke. Warte ca. 20 min bis der Kleber fest ist, entferne sorgfältig den Kleber von den Außenseiten der Endblöcke und schraube die Rahmen wieder an. Alle vier Ecken werden von 1 bis 4 markiert und die Ober und die Unterseite auf den Endblöcken gekennzeichnet. So sind das Zerlegen und der Zusammenbau einfach und rasch möglich. Das Bohren der Dampfkanäle Stecke ein 8mm Rundmaterial durch die Kurbelwellenbohrungen und ein 4mm Rundmaterial durch die Zylinder Drehlager. Die Bohrlehre wird auf die 4mm Achse gesteckt und das untere Ende gegen die Kurbelwellenachse gedrückt, wie im Foto gezeigt. Bohre dann den Dampfkanal mit einem Bohrer ungefähr 8mm tief durch die 1,6mm Bohrung der Bohrlehre. Entferne die Bohrlehre und drehe sie um auf die gegenüberliegende Seite und wiederhole das Ganze für den 2. Dampfkanal. Bohre alle 8 Dampfkanäle auf gleiche Weise. Entferne die Rahmen und bohre die Kanäle mit einem 2,5 mm Bohrer von der jeder Seite bis zur Mitte. Achtung bohre nicht den Dampfkanal nur von einer Seite durch. Bohre dann so tief bis eine Durchgangsbohrung für die Dampfkanäle entsteht. Jetzt werden die restlichen Bohrungen der zwei Endblöcke angefertigt. Auf einen der Blöcke wird das Dampfsteuerventil angebracht. Von der inneren Seite wie im Schnitt B-B gezeigt wird eine Bohrung zum untern Dampfkanal gebohrt. Die Ventilbohrungen werden im Abstand von 6mm wie im Plan gezeigt hergestellt. Zwei Bohrungen gehen durch den Block und haben Anschlüsse für den Dampfein- und Austritt.
  • 3.
    Die dritte Bohrungführt zum oberen Dampfkanal, die vierte zum unteren Dampfkanal. In der Mitte ist die Bohrung für die Achse des Dampfventils. Die Oberfläche des Blocks muss eben und spiegelglatt geschliffen sein, um gut abzudichten. Dies muss auch an den allen Zylinderflächen der Fall sein. Das polieren der Flächen geschieht mit einen feinen Schmirgelleinen in Stufen. Beginnend mit einer Körnung von 120 hinauf, Stufe für Stufe, bis zur Körnung 800. (120, 180,240,320,400, …) Es wir immer solange geschliffen bis keine Spur mehr von der letzten Körung zu sehen ist. Die Bohrungen auf der Innenseite der Endblöcke werden mit Stiftschrauben und Loctite dampfdicht verschlossen. (Siehe Bild) Baue die Rahmen und Endblöcke zusammen. Verbinde mit Kupferrohren(kann auch Messing sein) die unteren Dampfkanäle der einen Seite mit den oberen Dampfkanälen der anderen Seite. Ein Rohr verbindet die Einströmkanäle, das andere Rohr verbindet die Ausströmkanäle. Mit dem Dampfsteuerventil werden die Strömungsrichtungen gewechselt, und damit die Drehrichtung der Maschine bestimmt. Die Lager der Kurbelwelle werden vorsichtig mit Loctite in die Rahmen geklebt. Dabei ist es wichtig die Kurbelwelle einzufetten, einzubauen und bis zum Aushärten des Klebers in den Lagern zu belassen. Danach werden die Ölbohrungen in die Rahmen eingebracht. Reinigen sie alles gründlich und schließen Sie die Die Zylinder werden nach den Plänen gefertigt, Dabei ist zu beachten dass diese 0,3mm kleiner gebohrt und dann mir einer Reibahle auf Endmaß gerieben werden. Der Drehzapfen muss exakt im rechten Winkel moniert werden. Dafür ist es von Vorteil wenn das Gewindeloch auf der Bohrmaschine per Hand hergestellt, (exakt rechter Winkel) und das Gewinde des Zapfens auf der Drehbank geschnitten wird. Der Zapfen wird dann mit Loctite eingeklebt. Die Herstellung der Kolben beginnt mit den Kolbenstangen laut Plan. Die Pleuellager werden fertig gestellt und hart mit den Stangen verlötet. Danach werden die Kolben mit einen Übermaß von 0,5mm
  • 4.
    vorgefertigt und mitden Kolbenstangen verbunden. Auch hier wird mit Loctite geklebt. Danach werden die Kolbenstangen in Die Drehbank eingespannt und auf das vorläufige Endmaß abgedreht. Der Kolben muss streng in die Zylinderbohrung passen. Durch vorsichtiges schleifen mit einer Läpppaste wird der Kolben in den Zylinder eingepasst. Jeder Kolben und Zylinder wird mit der Nummer der Ecke an der er montiert wird gezeichnet. Die Kurbelscheiben werden laut Plan hergestellt und die Kurbelzapfen eingepresst und eingeklebt. Um 90° versetzt werden die Kurbelscheiben auf der Kurbelwelle montiert. Dies macht die Maschine selbstanlaufend. Das Schwungrad kann nach eigenen Ideen gefertigt werden und wird zwischen den Rahmen montiert. Dabei kann sowohl ein Seilrad wie auch ein Zahnrad zur Kraftübertragung mit montiert werden. Die Verrohung kann mit Kupferrohren wie auch mit Messingrohren erfolgen. Beachten sie dabei das vor dem biegen die Rohre ausgeglüht werden. Messingrohr sollte nur in glühenden Zustand gebogen werden. Die Maschine ist sehr drehfreudig und läuft bereist mit 0.3 bar an wenn sie exakt gebaut ist. Das Dampfventil wird aus Messing oder Bronze Rundmaterial hergestellt. Nachdem es fertig gedreht ist und die Mitte mit einen Zentrumsbohrer vorgebohrt ist, wird eine Seite mit wasserfesten Filzstift bemalt. Das Layout der Umsteuerkanäle wird darauf markiert und die Endpunkte mit einem passenden Bohrer gebohrt. Die Kanäle auf der Fräsmaschine hergestellt, und der Rest fertig gedreht. Der Hebel für das Ventil wird gebogen und hart eingelötet. Das Ventil wird an der Unterseite dampfdicht geschliffen. Die Kurbelscheiben werden laut Plan hergestellt und die Kurbelzapfen eingepresst und eingeklebt. Um 90° versetzt werden die Kurbelscheiben auf der Kurbelwelle montiert. Dies macht die Maschine selbstanlaufend.
  • 5.
    Das Schwungrad kannnach eigenen Ideen gefertigt werden und wird zwischen den Rahmen montiert. Dabei kann sowohl ein Seilrad wie auch ein Zahnrad zur Kraftübertragung mit montiert werden. Die Verrohung kann mit Kupferrohren wie auch mit Messingrohren erfolgen. Beachten sie dabei das vor dem biegen die Rohre ausgeglüht werden. Messingrohr sollte nur in glühenden Zustand gebogen werden.
  • 6.
    Die Maschine istsehr drehfreudig und läuft bereist mit 0.3 bar an wenn sie exakt gebaut ist. Von diesem Grunddesign lassen sich viele Varianten der Maschine bauen. Zum Beispiel eine 4 Zylinder zweifach wirkende Maschine oder eine V-Maschine. Viel Spaß beim bauen.
  • 7.
    THE INFORMATION CONTAINEDIN THIS DRAWING IS THE SOLE PROPERTY OF Helmut Pirker ANY REPRODUCTION IN PART OR WHOLE WITHOUT THE WRITTEN PERMISSION OF Helmut Pirker IS PROHIBITED. D 2 D 2 5 1 C C 2 B B 2 4 MATERIAL Oszillierende 4 Zylinder Boxer 5 Baugruppe Dampfsteuerung 1 4 Grundplatte 1 CAD GENERATED DRAWING, DO NOT MANUALLY UPDATE Helmut Pirker 3 Kolben 4 A 2 Zylinder 4 UNLESS OTHERWISE SPECIFIED DIMENSIONS ARE IN MM A 1 Zylinderträger 1 MATERIAL Oszillierende -- 4 Zylinder Boxer Menge Dampfmaschine POS.-NR. BENENNUNG einfach wirkend DO NOT SCALE DRAWING 8 7 6 PDF created with pdfFactory trial version www.pdffactory.com 5 4 3 2 1
  • 8.
    THE INFORMATION CONTAINEDIN THIS DRAWING IS THE SOLE PROPERTY OF Helmut Pirker ANY REPRODUCTION IN PART OR WHOLE WITHOUT THE WRITTEN PERMISSION OF Helmut Pirker IS PROHIBITED. D D 164,92 C C 93,29 B B 66,01 MATERIAL Oszillierende 4 Zylinder Boxer CAD GENERATED DRAWING, DO NOT MANUALLY UPDATE Helmut Pirker UNLESS OTHERWISE SPECIFIED A DIMENSIONS ARE IN MM A MATERIAL Oszillierende -- 4 Zylinder Boxer Dampfmaschine einfach wirkend DO NOT SCALE DRAWING 8 7 6 PDF created with pdfFactory trial version www.pdffactory.com 5 4 3 2 1
  • 9.
    THE INFORMATION CONTAINEDIN THIS DRAWING IS THE SOLE PROPERTY OF Helmut Pirker ANY REPRODUCTION IN PART OR WHOLE WITHOUT THE WRITTEN PERMISSION OF Helmut Pirker IS PROHIBITED. D D 5 2 6 1 C 4 6 C 6 3 1 B B 6 Verrohrung 1 MATERIAL Oszillierende 4 Zylinder Boxer 5 Kubelwelle 1 4 ISO 7046-1 - M3 x 10 - Z --- 4 CAD GENERATED DRAWING, 10S DO NOT MANUALLY UPDATE Helmut Pirker A 3 Endblock 1 UNLESS OTHERWISE SPECIFIED A 2 Endblock Dampfsteuerung 1 DIMENSIONS ARE IN MM MATERIAL Oszillierende 1 Seitenrahmen 2 -- 4 Zylinder Boxer Dampfmaschine MENGE einfach wirkend POS.-NR. BENENNUNG DO NOT SCALE DRAWING 8 7 6 PDF created with pdfFactory trial version www.pdffactory.com 5 4 3 2 1
  • 10.
    THE INFORMATION CONTAINEDIN THIS DRAWING IS THE SOLE PROPERTY OF Helmut Pirker ANY REPRODUCTION IN PART OR WHOLE WITHOUT THE WRITTEN PERMISSION OF Helmut Pirker IS PROHIBITED. 3.10 Durchbohren 3.10 Durchbohren 6,30 X 90° D 6,30 X 90° 165 D 50,80 9,50 Bohren mit Bohrlehre laut Text 19 1,60 25,50 44,50 6,90 C C 4 1 ,6 4 0 11,02 6 15 17,70 19 38 B R3,15 11 B B 6 6 3,40 1 MATERIAL Seitenrahmen CAD GENERATED DRAWING, DO NOT MANUALLY UPDATE Helmut Pirker UNLESS OTHERWISE SPECIFIED A DIMENSIONS ARE IN MM A 2 MATERIAL Oszillierende Messing 58 4 Zylinder Boxer Dampfmaschine einfach wirkend B (5 : 1) DO NOT SCALE DRAWING 8 7 6 PDF created with pdfFactory trial version www.pdffactory.com 5 4 3 2 1
  • 11.
    THE INFORMATION CONTAINEDIN THIS DRAWING IS THE SOLE PROPERTY OF Helmut Pirker ANY REPRODUCTION IN PART OR WHOLE WITHOUT THE WRITTEN PERMISSION OF Helmut Pirker IS PROHIBITED. 2 Durchbohren 3,10 X 118° 2 13,1 3,10 5 D F D 19 2,50 M3 14,50 7,70 6 13 6,70 2 Durchbohren E E 6 20,50 2 8 3,10 5 D 2 Durchbohren 66 41 0 2 3,10 5 C C 14,50 6 7 2,50 M3 F-F F 12,61 14,50 D 6,70 3,10 7 20 12,10 2 Durchbohren 2,50 7 M3 3,10 X 118° 19,68 12,13 B Mit Sitfschraube laut Test verschließen B 2,50 8.50 M3 8 Siehe Text E-E 25,40 6 MATERIAL 2 Oszillierende 4 Zylinder Boxer Siehe Text CAD GENERATED DRAWING, DO NOT MANUALLY UPDATE Helmut Pirker 10 2 A 1,60 UNLESS OTHERWISE SPECIFIED DIMENSIONS ARE IN MM A Siehe Text MATERIAL Oszillierende -- 4 Zylinder Boxer Dampfmaschine einfach wirkend DO NOT SCALE DRAWING 8 7 6 PDF created with pdfFactory trial version www.pdffactory.com 5 4 3 2 1
  • 12.
    THE INFORMATION CONTAINEDIN THIS DRAWING IS THE SOLE PROPERTY OF Helmut Pirker ANY REPRODUCTION IN PART OR WHOLE WITHOUT THE WRITTEN PERMISSION OF Helmut Pirker IS PROHIBITED. D 2 15 2,50 5.50 M3 6 D Verschließen lt. Text 7 14 2.50 13 3,10 7 6 6 3,10 7 8 10 41 6 7 C C 19 7,70 Kurbelwellenlager 2 Stk Bronze 9,50 25,40 1 ,6 14,60 0 25,40 6 B 2,50 8.50 M3 B Passstift Dampfkanäle lt. Text bohren Verschließen lt. Text Dampfkanäle lt. Text bohren MATERIAL 60 4 Oszillierende 4 Zylinder Boxer 3 1, CAD GENERATED DRAWING, DO NOT MANUALLY UPDATE Helmut Pirker UNLESS OTHERWISE SPECIFIED 5,60 A DIMENSIONS ARE IN MM A MATERIAL Oszillierende -- 4 Zylinder Boxer 50,80 14,30 Dampfmaschine einfach wirkend Bohrlehre 2mm Baustahl DO NOT SCALE DRAWING 8 7 6 PDF created with pdfFactory trial version www.pdffactory.com 5 4 3 2 1
  • 13.
    THE INFORMATION CONTAINEDIN THIS DRAWING IS THE SOLE PROPERTY OF Helmut Pirker ANY REPRODUCTION IN PART OR WHOLE WITHOUT THE WRITTEN PERMISSION OF Helmut Pirker IS PROHIBITED. D D C C B B MENGE POS.-NR. BENENNUNG MATERIAL Kurbelwellen Gruppe 1 Kurbelwelle 1 CAD GENERATED DRAWING, DO NOT MANUALLY UPDATE Helmut Pirker 2 Schwungscheibe 1 A 3 Kubelscheibe 2 UNLESS OTHERWISE SPECIFIED DIMENSIONS ARE IN MM A Kurbelscheibe 1 MATERIAL Oszillierende Kurbelstift 1 -- 4 Zylinder Boxer ISO 4029 - M3 x 8-S 1 Dampfmaschine einfach wirkend DO NOT SCALE DRAWING 8 7 6 PDF created with pdfFactory trial version www.pdffactory.com 5 4 3 2 1
  • 14.
    THE INFORMATION CONTAINEDIN THIS DRAWING IS THE SOLE PROPERTY OF Helmut Pirker ANY REPRODUCTION IN PART OR WHOLE WITHOUT THE WRITTEN PERMISSION OF Helmut Pirker IS PROHIBITED. I M3 3 2,50 13 M3 D D 28 15 3 C I C 50 6 I-I 26 9,50 Schwungrad Automatenstahl/Grauguß Kurbelscheibe Automatenstahl 6 H 9 0° 0 B B R3 6 10 H (2 : 1) 60 6 Kurbelwelle Silberstahl härten MATERIAL Oszillierende 4 Zylinder Boxer 16 CAD GENERATED DRAWING, DO NOT MANUALLY UPDATE Helmut Pirker UNLESS OTHERWISE SPECIFIED A A 3 DIMENSIONS ARE IN MM MATERIAL Oszillierende -- 4 Zylinder Boxer Kurbelstift Silberstahl härten Dampfmaschine einfach wirkend DO NOT SCALE DRAWING 8 7 6 PDF created with pdfFactory trial version www.pdffactory.com 5 4 3 2 1
  • 15.
    THE INFORMATION CONTAINEDIN THIS DRAWING IS THE SOLE PROPERTY OF Helmut Pirker ANY REPRODUCTION IN PART OR WHOLE WITHOUT THE WRITTEN PERMISSION OF Helmut Pirker IS PROHIBITED. 41 14 24 J 4, D D 20 20 17 0,40 C C 20 12,30 16 1,60 6 M2 Bohrungen vom Zylinderdeckel übernehmen 1,60 B B J 4 2.60 M4x05 MATERIAL Zylinder CAD GENERATED DRAWING, DO NOT MANUALLY UPDATE Helmut Pirker UNLESS OTHERWISE SPECIFIED A DIMENSIONS ARE IN MM A MATERIAL Oszillierende Messing / Bronze 4 Zylinder Boxer Dampfmaschine einfach wirkend DO NOT SCALE DRAWING 8 7 6 PDF created with pdfFactory trial version www.pdffactory.com 5 4 3 2 1
  • 16.
    THE INFORMATION CONTAINEDIN THIS DRAWING IS THE SOLE PROPERTY OF Helmut Pirker ANY REPRODUCTION IN PART OR WHOLE WITHOUT 0 9 THE WRITTEN PERMISSION OF Helmut Pirker IS PROHIBITED. R1 3 D M4x0.5 5 3 14 6,20 D 11.4 4 M4 2 3 25 13,01 0,50 2,50 Zylinderdrehachse Silberstahl härten Zylinder deckel Messing Feder scheibe Messing/Bronze 1 C C 0,40 0,20 8 8 3 7 Feder 6mm Durchmesser Lange 12mm Drahtstärke ca. 0.4 mm 3 6 K (5 : 1) 4,75 4,30 2,40 4.85 M3 K 16 6 R3 B Kolbenstangenfuß B Messing / Bronze R3 10 7 4,30 4,30 14 MATERIAL Kolben Messing 10 Oszillierende 4 Zylinder Boxer 4,85 4 CAD GENERATED DRAWING, DO NOT MANUALLY UPDATE Helmut Pirker 5 M3 UNLESS OTHERWISE SPECIFIED A DIMENSIONS ARE IN MM A 3 MATERIAL Oszillierende 49,50 -- 4 Zylinder Boxer Dampfmaschine Kolbenstange Silberstahl einfach wirkend DO NOT SCALE DRAWING 8 7 6 PDF created with pdfFactory trial version www.pdffactory.com 5 4 3 2 1
  • 17.
    THE INFORMATION CONTAINEDIN THIS DRAWING IS THE SOLE PROPERTY OF Helmut Pirker ANY REPRODUCTION IN PART OR WHOLE WITHOUT THE WRITTEN PERMISSION OF Helmut Pirker IS PROHIBITED. 2 5 4 12 D 10,99 4,96 1,50 ,2 7 D 8 3 2,58 11,08 5,93 8 10 8 2 C C 23 6 Dampfventil Messing 3.40 Senken Hebel hart löten 6,30 X 90° 4,50 58 3,40 4.55 2, 83 9,75 17,75 47 B B 63,50 Grundplatte Alu/Messing 28 44 MATERIAL Oszillierende 4 Zylinder Boxer CAD GENERATED DRAWING, DO NOT MANUALLY UPDATE Helmut Pirker UNLESS OTHERWISE SPECIFIED A DIMENSIONS ARE IN MM A MATERIAL Oszillierende -- 4 Zylinder Boxer 67 Dampfmaschine 6 einfach wirkend 3 Durchbohren DO NOT SCALE DRAWING 8 7 6 PDF created with pdfFactory trial version www.pdffactory.com 5 4 3 2 1